MATEO CLOSA
estudio de arquitectura
Ir directamente al contenido
Castellano
Mateo Closa
Diseño de interiores
Reforma de vivienda en la calle Rector Ubach, Barcelona
REFORMA DE LOCAL PARA CLÍNICA VETERINARIA, BARCELONA
Apartamento en la calle Muntaner, Barcelona
Ático Ravella, Barcelona
Apartamento La Granada, Barcelona
APARTAMENTO EN LA CALLE BALMES, BARCELONA
APARTAMENTO EN TRAVESERA DE GRACIA, BARCELONA
APARTAMENTO EN LA CALLE DENIA, BARCELONA
APARTAMENTO EN VIA LAIETANA, BARCELONA
ÁTICO EN SARRIA, BARCELONA
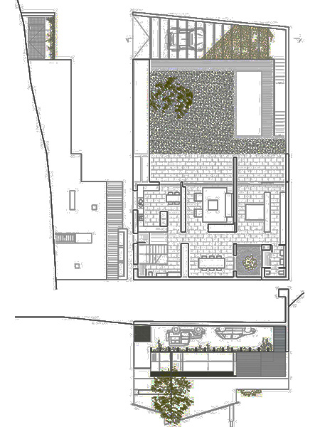
VIVIENDA EN LA BISBAL DEL PENEDÉS
REFORMA DE APARTAMENTO DE VACACIONES
Arquitectura
Educativo
REFORMA Y AMPLIACIÓ DE ESCUELA, PREMIÀ DE MAR
FERRÁN AGULLÓ _AMPLIACIÓN CENTRO DE EDUCACIÓN
CENTRO DE EDUCACIÓN INFANTIL Y PRIMARIA «FERRÁN AGULLÓ»
TEIÀ ,INSTITUTO DE EDUCACIÓN SECUNDARIA
CENTRO DE EDUCACIÓN INFANTIL EN LA CALLE BAILÉN
ESCUELA ALZINES BALLADORES
Tranporte
INTERCAMBIADOR DE LA ESTACIÓN DE PASEO DE GRACIA, L3-L4
ESTACIÓN DE METRO PUBILLA CASES, L5
Asistencial
ARS VETERINARIA PEDRALBES
ARS VETERINARIA, ESTEVE TERRADAS
ARS VETERINARIA, BELLESGUARD
ARS VETERINARIA, VALLCARCA
Ars Veterinaria, Barcelona zona innovación
Ars Veterinaria, Poblenou
CONSULTORIO LOCAL , TEYÁ
RESIDENCIA DE DISMINUIDOS PSÍQUICOS Y CENTRO DE DÍA
INSTITUTO CATALAN DE EVALUACIONES MÉDICAS
CENTRO DE ATENCIÓN PRIMARIA POBLENOU
CENTRO DE ATENCIÓN PRIMARIA BESÓS
CENTRO DE ATENCIÓN PRIMARIA, TONA
Oficinas
Oficinas en el Paseo de Gracia
OFICINAS DEL NUEVO CENTRE DE CONTROL DE METRO
POLICIA LOCAL Y PROTECCIÓN CIVIL
Residencial
ECO-HOTEL,MÉXICO
VIVIENDA EN CUNIT
VIVIENDA EN CARDEDEU
VIVIENDAS ADOSADAS EN CERDANYOLA
VIVIENDA EN LLAFRANC
16 VIVIENDAS PARA GENTE MAYOR , TEYÁ
VIVIENDA EN MENORCA
Cultural
Casal de entidades en Sant Andreu, Barcelona.
VILLA URANIA
CENTRO CULTURAL RIERA DE GINJOLES
CENTRO CÍVICO BARÓ DE VIVER
CASA DEL MEDITERRÁNEO
CENTRO CÍVICO LA VIOLETA
Espacio público
PLAZA Y APARCAMIENTO PÚBLICO , TEYÁ
Concursos
Casal de entidades en Sant Andreu, Barcelona.
VILLA URANIA
CENTRO CÍVICO BARÓ DE VIVER
CENTRO DE EDUCACIÓN INFANTIL EN LA CALLE BAILÉN
CENTRO CULTURAL RIERA DE GINJOLES
POLICíA LOCAL Y PROTECCIÓN CIVIL
ESCUELA ALZINES BALLADORES
CENTRO DE BARRIO CAN RECTORET
CASA DEL MEDITERRÁNEO
PUBLICACIONES
PUBLICACIONES/DISEÑO GRÁFICO
OBRA PUBLICADA
NOTICIAS
4rto premio en el concurso para el Casal de entidades «Porta de la Trinitat»
Estudio / Contacto
Català
Mateo Closa
Disseny d’interior
Reforma d’habitatge al carrer Rector Ubach, Barcelona
Reforma de local per a clinica veterinària, Barcelona
Apartament al carrer Muntaner, Barcelona.
Àtic Ravella, Barcelona
Apartament La Granada, Barcelona
Apartament al carrer Balmes, Barcelona
Apartament a Travessera de Gràcia, Barcelona
Apartament a Via Laietana, Barcelona
Àtic a Sarria, Barcelona
Apartament al carrer Denia, Barcelona
Habitatge a la Bisbal del Penedès
Reforma apartament de vacances
Arquitectura
Educatiu
Reforma i ampliació d’escola, Premià de Mar
Ferran Agulló_Ampliació centre d’educació
Centre d’educació infantil i primària «Ferrán Agulló»
Teià, institut d’educació secundària
Centre d’educació infantil al carrer Bailén
Escola Alzines Balladores
Transport
Bescanviador de l’estació de Passeig de Gràcia, L3-L4
Estació de Metro Pubilla Cases, L5
Assistencial
ARS VETERINÀRIA PEDRALBES
ARS VETERINÀRIA, ESTEVE TERRADAS
ARS VETERINÀRIA BELLESGUARD
ARS VETERINÀRIA VALLCARCA
Ars Veterinària, Barcelona zona innovació
Ars Veterinària, Poblenou
Consultori local, Teya
Residència de disminuits psiquics i centre de dia
Institut català d’avaluacions mèdiques
Centre d’atenció primària Poblenou
Centre d’atenció primària Besós
Centre d’atenció primària, Tona
Oficines
Oficines del Nou Centre de control de Metro
Oficines al Passeig de Gràcia
Policia local i protecció civil
Residencial
ECO-HOTEL, MÈXIC
Habitatge a Cunit
Habitatge a Cardedeu
Habitatges adossades a Cerdanyola
Habitatge a Llafranc
16 habitatges per a gent gran, Teya
Habitatge a Menorca
Cultural
Casal d’entitats a Sant Andreu, Barcelona
Vila Urania
Centre cultural Riera de Ginjoles
Centre cívic Baró de Viver
Casa de la Mediterrània
Centre cívic La Violeta
Espai públic
Plaça i aparcament públic, Teya
Concursos
Casal d’entitats a Sant Andreu, Barcelona
Vila Urania
Centre d’educació infantil al carrer Bailén
Centre cultural Riera de Ginjoles
Policia local i protecció civil
Escola Alzines Balladores
Centren cívic Baró de Viver
Casa de la Mediterrània
Centre Cívic La Violeta
Publicacions
Obra publicada
Publicacions/ Disseny gràfic
Notícies
4rt premi en el concurs per al Casal d’entitats «Porta de la Trinitat»
Estudi / Contacte
English
Mateo Closa
Interior design
Refurbishment of a house in Rector Ubach street, Barcelona
Veterinary clinic renovation, Barcelona
Apartment in Muntaner street, Barcelona.
Ravella penthouse
La Granada apartment , Barcelona
Apartment in Balmes street
Apartment in Travessera de Gracia street, Barcelona
Aparment in Denia Street, Barcelona
Apartment in Via Laietana street, Barcelona
Penthouse in Sarria
House in Tarragona, La Bisbal del Penedés
Holidays apartment
Architecture
Teaching
Renovation and extension of school, Premià de Mar
Ferrán Agulló_ extension of a teaching building
Primary and secondary school “Ferrán Agulló”
Teià, secondary school
Primary school at Bailén street
Alzines Balladores school
Transport
Paseo de Gracia, L3-L4. Barcelona
Subway station «Pubilla Cases»
Healthcare
VETERINARY HOSPITAL «ARS VETERINARIA» PEDRALBES
ARS VETERINARIA, ESTEVE TERRADAS
ARS VETERINARIA, BELLESGUARD
ARS VETERINARIA, VALLCARCA
Ars Veterinaria, Barcelona Innovation Zone
Veterinary hospital «Ars Veterinaria», Poblenou
Local health center, Teyà
Residence and Day Center for the Mentally Handicapped
Catalan institute of medical evaluation
Primary healthcare center, Poblenou
Primary healthcare center «Besós»
Primary healthcare center, Tona
Office buildings
New office building of Metro Control Center
Office building in Paseo de Gracia
Local law enforcement agencies building, Lloret de Mar
Dwelling
ECO-HOTEL,MEXICO
Cunit, detached home
Cardedeu, detached home
Cerdanyola, terraced houses
Llafranc, detached home
Teyà, apartments for senior people
Menorca,house between party walls
Cultural buildings
Sant Andreu Entities Center
Villa Urania, Day Center
Baró de Viver, Day Center
Riera de Ginjoles, cultural center
Casa del Mediterráneo HQ
Can Rectoret Day Center
La Violeta, Day Center
Public space
Public square and parking, Teyà
Competitions
Sant Andreu Entities Center
Villa Urania, Day Center
Baró de Viver, Day Center
Primary school at Bailén street
Riera de Ginjoles, cultural center
Alzines Balladores school
Local law enforcement agencies building, Lloret de Mar
Casa del Mediterráneo HQ
Can Rectoret Day Center
La Violeta, Day Center
Publications
Graphic design
Published work
NEWS
4th prize contest for entities center «Porta de la Trinitat»
Office and contact
abril 25, 2014
VIVIENDA EN LA BISBAL DEL PENEDÉS
450 × 600
Me gusta
Cargando...
Previous Image
Deja un comentario
Cancelar la respuesta
X
Buscar:
Privacidad y cookies: este sitio utiliza cookies. Al continuar utilizando esta web, aceptas su uso.
Para obtener más información, incluido cómo controlar las cookies, consulta aquí:
Política de cookies
Suscribirse
Suscrito
MATEO CLOSA
Suscríbeme
¿Ya tienes una cuenta de WordPress.com?
Inicia sesión
.
MATEO CLOSA
Suscribirse
Suscrito
Regístrate
Iniciar sesión
Copiar enlace corto
Denunciar este contenido
Ver la entrada en el Lector
Gestionar las suscripciones
Contraer esta barra
%d