MATEO CLOSA

estudio de arquitectura

Ir directamente al contenido
  • Castellano
    • Mateo Closa
    • Diseño de interiores
      • Reforma de vivienda en la calle Rector Ubach, Barcelona
      • REFORMA DE LOCAL PARA CLÍNICA VETERINARIA, BARCELONA
      • Apartamento en la calle Muntaner, Barcelona
      • Ático Ravella, Barcelona
      • Apartamento La Granada, Barcelona
      • APARTAMENTO EN LA CALLE BALMES, BARCELONA
      • APARTAMENTO EN TRAVESERA DE GRACIA, BARCELONA
      • APARTAMENTO EN LA CALLE DENIA, BARCELONA
      • APARTAMENTO EN VIA LAIETANA, BARCELONA
      • ÁTICO EN SARRIA, BARCELONA
      • VIVIENDA EN LA BISBAL DEL PENEDÉS
      • REFORMA DE APARTAMENTO DE VACACIONES
    • Arquitectura
      • Educativo
        • REFORMA Y AMPLIACIÓ DE ESCUELA, PREMIÀ DE MAR
        • FERRÁN AGULLÓ _AMPLIACIÓN CENTRO DE EDUCACIÓN
        • CENTRO DE EDUCACIÓN INFANTIL Y PRIMARIA «FERRÁN AGULLÓ»
        • TEIÀ ,INSTITUTO DE EDUCACIÓN SECUNDARIA
        • CENTRO DE EDUCACIÓN INFANTIL EN LA CALLE BAILÉN
        • ESCUELA ALZINES BALLADORES
      • Tranporte
        • INTERCAMBIADOR DE LA ESTACIÓN DE PASEO DE GRACIA, L3-L4
        • ESTACIÓN DE METRO PUBILLA CASES, L5
      • Asistencial
        • ARS VETERINARIA PEDRALBES
        • ARS VETERINARIA, ESTEVE TERRADAS
        • ARS VETERINARIA, BELLESGUARD
        • ARS VETERINARIA, VALLCARCA
        • Ars Veterinaria, Barcelona zona innovación
        • Ars Veterinaria, Poblenou
        • CONSULTORIO LOCAL , TEYÁ
        • RESIDENCIA DE DISMINUIDOS PSÍQUICOS Y CENTRO DE DÍA
        • INSTITUTO CATALAN DE EVALUACIONES MÉDICAS
        • CENTRO DE ATENCIÓN PRIMARIA POBLENOU
        • CENTRO DE ATENCIÓN PRIMARIA BESÓS
        • CENTRO DE ATENCIÓN PRIMARIA, TONA
      • Oficinas
        • Oficinas en el Paseo de Gracia
        • OFICINAS DEL NUEVO CENTRE DE CONTROL DE METRO
        • POLICIA LOCAL Y PROTECCIÓN CIVIL
      • Residencial
        • ECO-HOTEL,MÉXICO
        • VIVIENDA EN CUNIT
        • VIVIENDA EN CARDEDEU
        • VIVIENDAS ADOSADAS EN CERDANYOLA
        • VIVIENDA EN LLAFRANC
        • 16 VIVIENDAS PARA GENTE MAYOR , TEYÁ
        • VIVIENDA EN MENORCA
      • Cultural
        • Casal de entidades en Sant Andreu, Barcelona.
        • VILLA URANIA
        • CENTRO CULTURAL RIERA DE GINJOLES
        • CENTRO CÍVICO BARÓ DE VIVER
        • CASA DEL MEDITERRÁNEO
        • CENTRO CÍVICO LA VIOLETA
      • Espacio público
        • PLAZA Y APARCAMIENTO PÚBLICO , TEYÁ
      • Concursos
        • Casal de entidades en Sant Andreu, Barcelona.
        • VILLA URANIA
        • CENTRO CÍVICO BARÓ DE VIVER
        • CENTRO DE EDUCACIÓN INFANTIL EN LA CALLE BAILÉN
        • CENTRO CULTURAL RIERA DE GINJOLES
        • POLICíA LOCAL Y PROTECCIÓN CIVIL
        • ESCUELA ALZINES BALLADORES
        • CENTRO DE BARRIO CAN RECTORET
        • CASA DEL MEDITERRÁNEO
    • PUBLICACIONES
      • PUBLICACIONES/DISEÑO GRÁFICO
      • OBRA PUBLICADA
    • NOTICIAS
      • 4rto premio en el concurso para el Casal de entidades «Porta de la Trinitat»
    • Estudio / Contacto
  • Català
    • Mateo Closa
    • Disseny d’interior
      • Reforma d’habitatge al carrer Rector Ubach, Barcelona
      • Reforma de local per a clinica veterinària, Barcelona
      • Apartament al carrer Muntaner, Barcelona.
      • Àtic Ravella, Barcelona
      • Apartament La Granada, Barcelona
      • Apartament al carrer Balmes, Barcelona
      • Apartament a Travessera de Gràcia, Barcelona
      • Apartament a Via Laietana, Barcelona
      • Àtic a Sarria, Barcelona
      • Apartament al carrer Denia, Barcelona
      • Habitatge a la Bisbal del Penedès
      • Reforma apartament de vacances
    • Arquitectura
      • Educatiu
        • Reforma i ampliació d’escola, Premià de Mar
        • Ferran Agulló_Ampliació centre d’educació
        • Centre d’educació infantil i primària «Ferrán Agulló»
        • Teià, institut d’educació secundària
        • Centre d’educació infantil al carrer Bailén
        • Escola Alzines Balladores
      • Transport
        • Bescanviador de l’estació de Passeig de Gràcia, L3-L4
        • Estació de Metro Pubilla Cases, L5
      • Assistencial
        • ARS VETERINÀRIA PEDRALBES
        • ARS VETERINÀRIA, ESTEVE TERRADAS
        • ARS VETERINÀRIA BELLESGUARD
        • ARS VETERINÀRIA VALLCARCA
        • Ars Veterinària, Barcelona zona innovació
        • Ars Veterinària, Poblenou
        • Consultori local, Teya
        • Residència de disminuits psiquics i centre de dia
        • Institut català d’avaluacions mèdiques
        • Centre d’atenció primària Poblenou
        • Centre d’atenció primària Besós
        • Centre d’atenció primària, Tona
      • Oficines
        • Oficines del Nou Centre de control de Metro
        • Oficines al Passeig de Gràcia
        • Policia local i protecció civil
      • Residencial
        • ECO-HOTEL, MÈXIC
        • Habitatge a Cunit
        • Habitatge a Cardedeu
        • Habitatges adossades a Cerdanyola
        • Habitatge a Llafranc
        • 16 habitatges per a gent gran, Teya
        • Habitatge a Menorca
      • Cultural
        • Casal d’entitats a Sant Andreu, Barcelona
        • Vila Urania
        • Centre cultural Riera de Ginjoles
        • Centre cívic Baró de Viver
        • Casa de la Mediterrània
        • Centre cívic La Violeta
      • Espai públic
        • Plaça i aparcament públic, Teya
      • Concursos
        • Casal d’entitats a Sant Andreu, Barcelona
        • Vila Urania
        • Centre d’educació infantil al carrer Bailén
        • Centre cultural Riera de Ginjoles
        • Policia local i protecció civil
        • Escola Alzines Balladores
        • Centren cívic Baró de Viver
        • Casa de la Mediterrània
        • Centre Cívic La Violeta
    • Publicacions
      • Obra publicada
      • Publicacions/ Disseny gràfic
    • Notícies
      • 4rt premi en el concurs per al Casal d’entitats «Porta de la Trinitat»
    • Estudi / Contacte
  • English
    • Mateo Closa
    • Interior design
      • Refurbishment of a house in Rector Ubach street, Barcelona
      • Veterinary clinic renovation, Barcelona
      • Apartment in Muntaner street, Barcelona.
      • Ravella penthouse
      • La Granada apartment , Barcelona
      • Apartment in Balmes street
      • Apartment in Travessera de Gracia street, Barcelona
      • Aparment in Denia Street, Barcelona
      • Apartment in Via Laietana street, Barcelona
      • Penthouse in Sarria
      • House in Tarragona, La Bisbal del Penedés
      • Holidays apartment
    • Architecture
      • Teaching
        • Renovation and extension of school, Premià de Mar
        • Ferrán Agulló_ extension of a teaching building
        • Primary and secondary school “Ferrán Agulló”
        • Teià, secondary school
        • Primary school at Bailén street
        • Alzines Balladores school
      • Transport
        • Paseo de Gracia, L3-L4. Barcelona
        • Subway station «Pubilla Cases»
      • Healthcare
        • VETERINARY HOSPITAL «ARS VETERINARIA» PEDRALBES
        • ARS VETERINARIA, ESTEVE TERRADAS
        • ARS VETERINARIA, BELLESGUARD
        • ARS VETERINARIA, VALLCARCA
        • Ars Veterinaria, Barcelona Innovation Zone
        • Veterinary hospital «Ars Veterinaria», Poblenou
        • Local health center, Teyà
        • Residence and Day Center for the Mentally Handicapped
        • Catalan institute of medical evaluation
        • Primary healthcare center, Poblenou
        • Primary healthcare center «Besós»
        • Primary healthcare center, Tona
      • Office buildings
        • New office building of Metro Control Center
        • Office building in Paseo de Gracia
        • Local law enforcement agencies building, Lloret de Mar
      • Dwelling
        • ECO-HOTEL,MEXICO
        • Cunit, detached home
        • Cardedeu, detached home
        • Cerdanyola, terraced houses
        • Llafranc, detached home
        • Teyà, apartments for senior people
        • Menorca,house between party walls
      • Cultural buildings
        • Sant Andreu Entities Center
        • Villa Urania, Day Center
        • Baró de Viver, Day Center
        • Riera de Ginjoles, cultural center
        • Casa del Mediterráneo HQ
        • Can Rectoret Day Center
        • La Violeta, Day Center
      • Public space
        • Public square and parking, Teyà
      • Competitions
        • Sant Andreu Entities Center
        • Villa Urania, Day Center
        • Baró de Viver, Day Center
        • Primary school at Bailén street
        • Riera de Ginjoles, cultural center
        • Alzines Balladores school
        • Local law enforcement agencies building, Lloret de Mar
        • Casa del Mediterráneo HQ
        • Can Rectoret Day Center
        • La Violeta, Day Center
    • Publications
      • Graphic design
      • Published work
    • NEWS
      • 4th prize contest for entities center «Porta de la Trinitat»
    • Office and contact
  • octubre 23, 2017
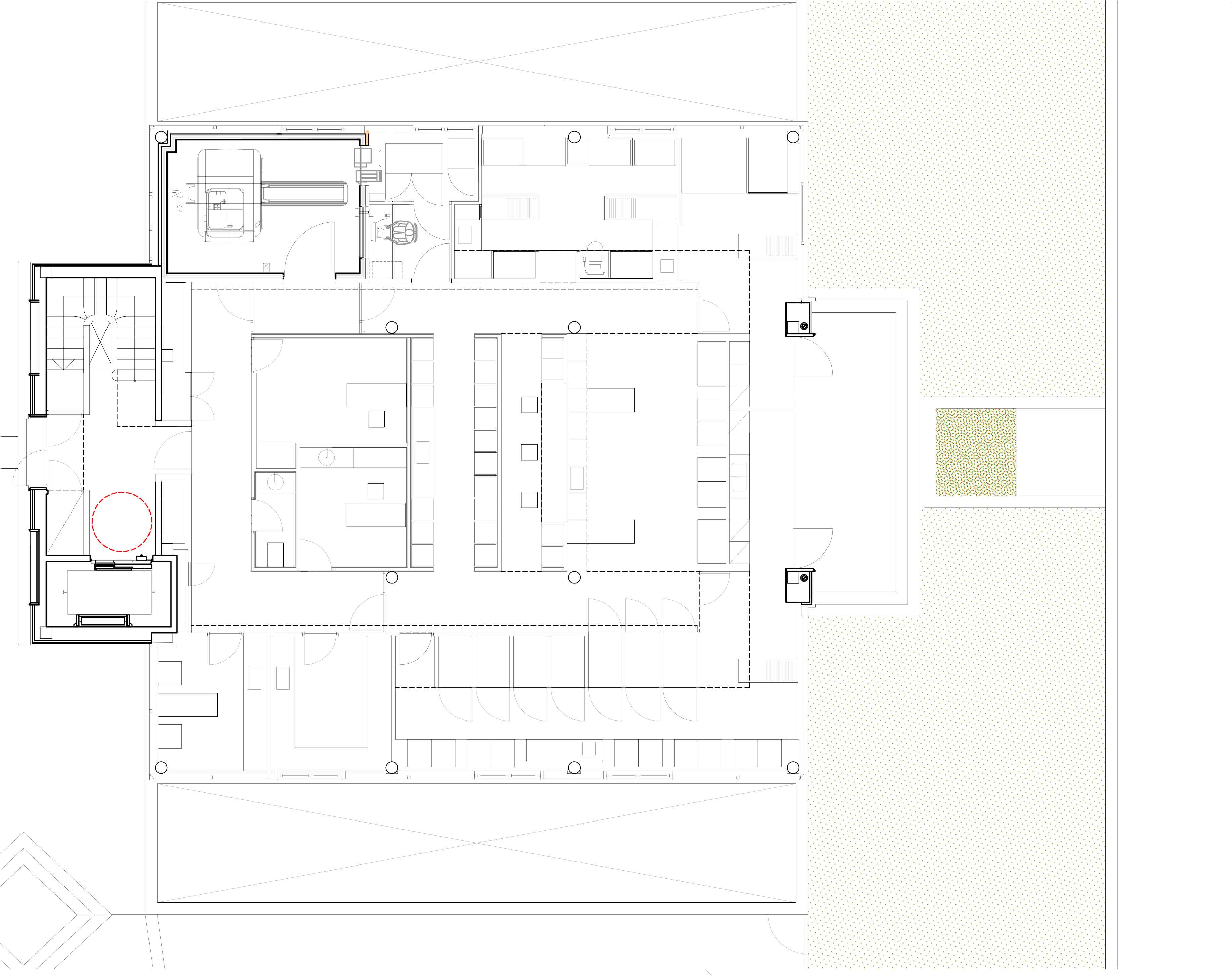
  • ARS VETERINARIA PEDRALBES
  • 3667 × 2906

ARS_P1

P1

Me gusta Cargando...
Previous Image
Next Image

Contacto

Carrer d'Alfons XII, 26, 08006 Barcelona
696 67 74 08
Lunes a jueves: 10:00-19:00
Viernes: 10:00-14:00
Blog de WordPress.com.
X
Privacidad y cookies: este sitio utiliza cookies. Al continuar utilizando esta web, aceptas su uso.
Para obtener más información, incluido cómo controlar las cookies, consulta aquí: Política de cookies
  • Suscribirse Suscrito
    • MATEO CLOSA
    • ¿Ya tienes una cuenta de WordPress.com? Inicia sesión.
    • MATEO CLOSA
    • Suscribirse Suscrito
    • Regístrate
    • Iniciar sesión
    • Copiar enlace corto
    • Denunciar este contenido
    • Ver la entrada en el Lector
    • Gestionar las suscripciones
    • Contraer esta barra
%d