Projecte bàsic, executiu i direcció d’obra de reforma integral d’edifici aïllat en parcel·la per adaptar-lo a hospital veterinari «Ars Veterinària«
Autor /s: Mateo Closa
Ubicació: C / Cavallers 37, Pedralbes, Barcelona
Data projecte: 2016 Data final d’obra: 2017
Client: Ars Veterinària

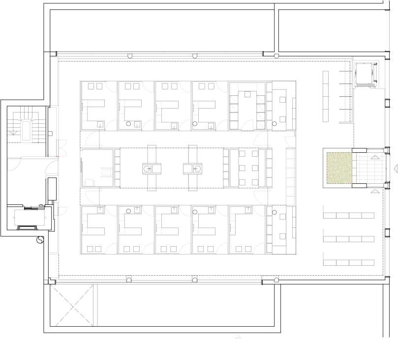
PB

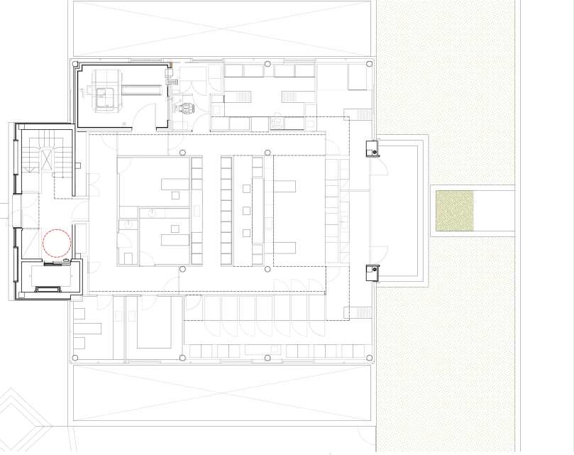
P1

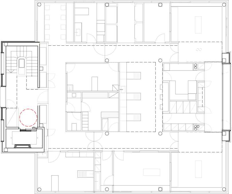
P2

P3

Debe estar conectado para enviar un comentario.